
CO-OP PRICE
$1,495,000
MONTHLY MAINTENANCE
$1,178
ESTIMATED PAYMENT
$8,439
5th Ave & 2nd St in Park Slope - 2BR/1BA - #4L
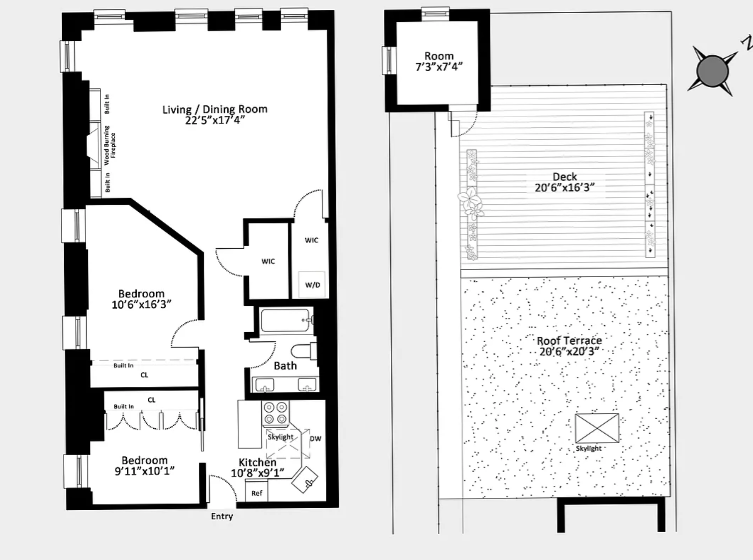
Perched at the top of a boutique Park Slope building, this sun-drenched two-bedroom is a rare blend of volume, warmth, and character—topped off with a truly jaw-dropping roof terrace. Inside, the heart of the home is a dramatic living room with 14-foot ceilings, a wood-burning fireplace, and five oversized windows that drench the space in natural light from morning till dusk. It’s the kind of room that makes you pause, breathe, and feel instantly at home. The kitchen is quietly striking—anchored by a skylight overhead and clever custom cabinetry that conceals appliances for a seamless, sculptural feel. Whether you're brewing coffee or cooking for ten, it’s a space that simply works. Both bedrooms are bright and thoughtfully proportioned. The larger offers generous closet space, while the second is a flexible retreat—perfect for guests, work, or creativity. A walk-in laundry room with an in-unit washer/dryer and additional closet space adds everyday ease. The home also features central air conditioning, exposed brick, and hardwood floors, plus private storage on the roof (including a second fridge) and additional storage in the basement. But the crown jewel? A private roof terrace that spans over 1,050 square feet, with wide-open views stretching all the way to Lady Liberty. From solo sunrise coffees to summer dinner parties, this outdoor space transforms daily life. Set just off 5th Avenue in the heart of Park Slope, this home offers the best of brownstone Brooklyn living—with Prospect Park, top restaurants, shops, the Brooklyn Museum, and multiple transit options all close by. If light, space, and soul are your non-negotiables—this one hits the mark.
Listing courtesy of Douglas Elliman













Contact us for more information or to arrange viewing.
david.aknin@theagencyre.com
(646) 673-5434