CO-OP PRICE

$2,750,000


MONTHLY MAINTENANCE

$3,878


ESTIMATED PAYMENT

$17,427

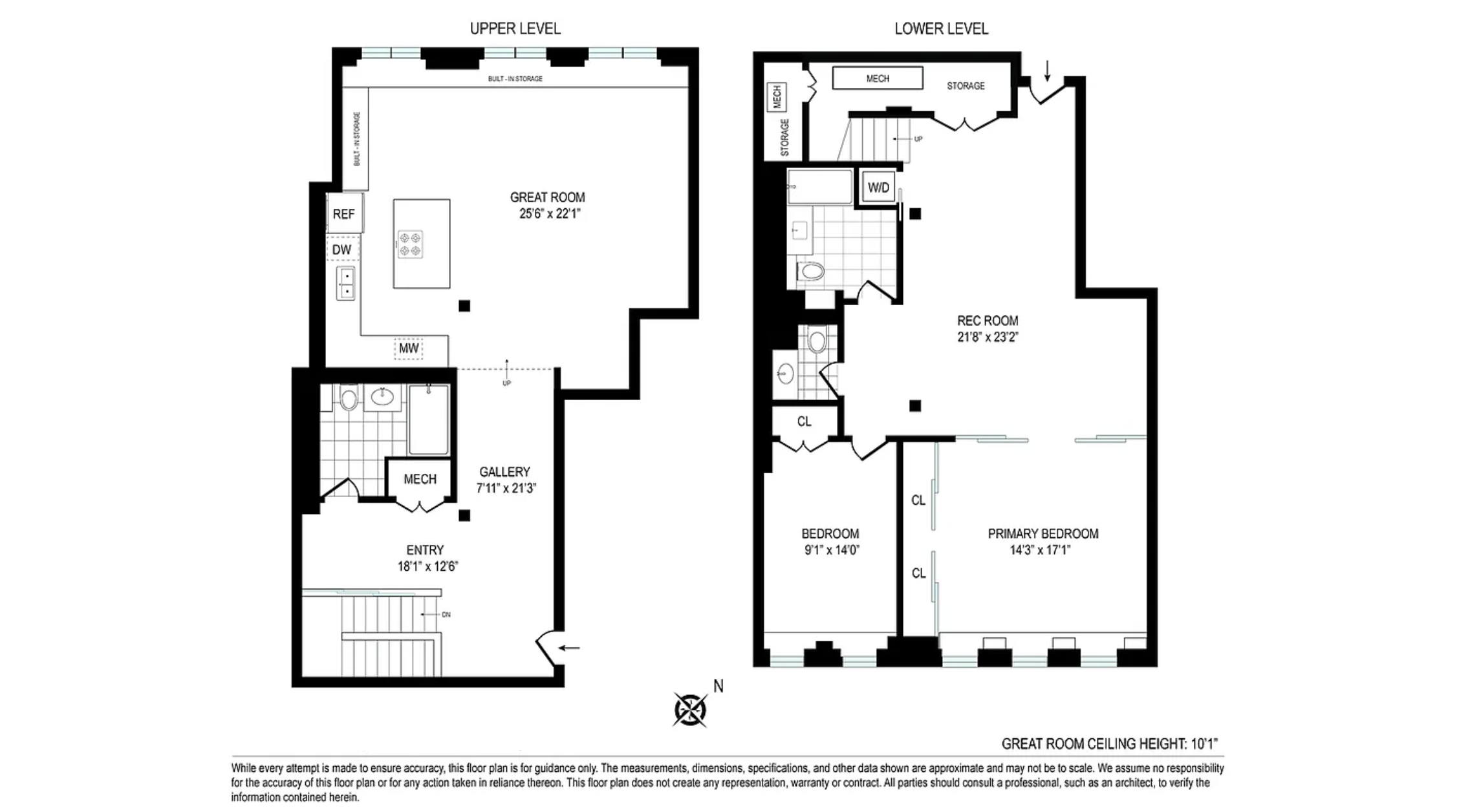
Thompson St & W Houston St - in Soho- 2BR/2.5BA

Thompson Street is a prewar gem built for the Marvin Safe Co. in 1903. It became a cooperative in 1978. This location is at the cross section of Soho and the West Village. Apartment 6B is a large loft-style duplex with just over 2000 square feet. The upstairs features an enormous open living room/dining room facing West with incredible light and unobstructed views. The open concept kitchen has Miele appliances and great storage space. There is a full bathroom upstairs. The apartment has retained some lovely prewar details such as rough hewn wood columns, brickwork walls, 10' ceilings, and an original entry way door frame from a bygone era. Downstairs offers a flexible layout with two nice sized bedrooms, a full bathroom and a half bathroom, a washer dryer, terrific closet space and East exposure.

There is a Central Air System in place that needs to be repaired or replaced. This is an "as is" estate sale. The last full renovation was done in 2006.

On premises is a live-in resident manager. There is also a porter, shared storage cages and bike storage. Pets are allowed with board approval not exceeding 75lbs. Pied-a-Terre, Co-Purchasing and Guarantors are allowed on a case by case basis. Subletting is allowed but no short term leases. 75% financing allowed. This is a 6 story Landmark building.

Located in a vibrant neighborhood, this coop is surrounded by cultural attractions, fine dining, amazing shopping and excellent transportation options: R,W,C,E,6,B,D,F,M Subway lines.

Listing Courtesy of Douglas Elliman

Contact us for more information or to arrange viewing.

david.aknin@theagencyre.com

(646) 673-5434

Previous
Previous

W 11th St & 7th Ave- in Greenwich Village- 3BR/2BA