
CO-OP PRICE
$1,400,000
COMMON CHARGES
$450
TAXES
$21
ESTIMATED PAYMENT
$4,423
Powers St & Lorimer St in Williamsburg - 2BR/1.5BA
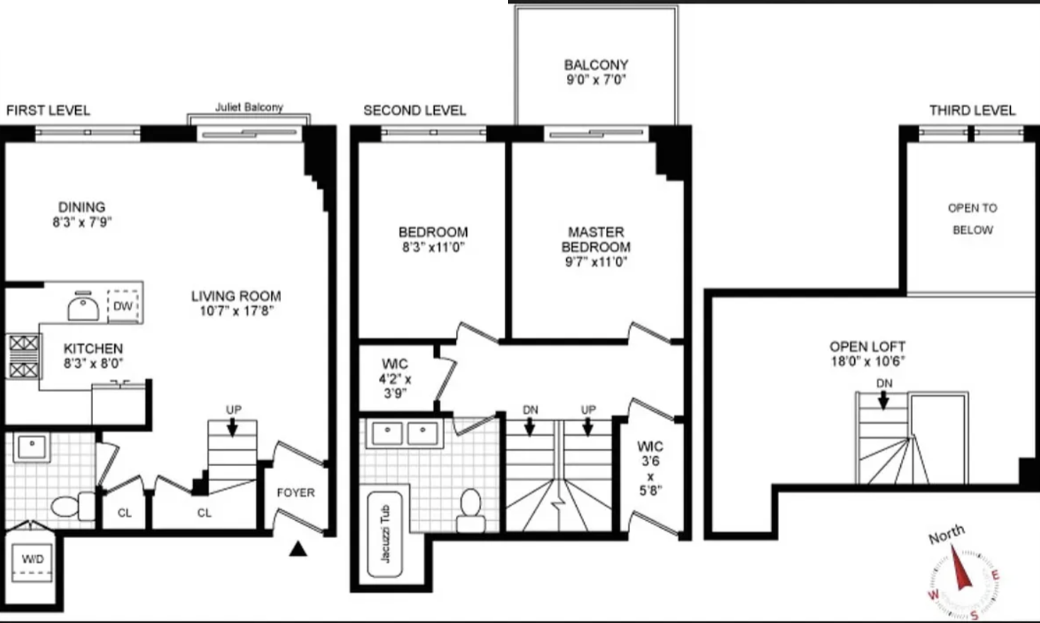
Flexible, functional, and first-class living comes to prime Williamsburg with this spacious two-bedroom triplex find just up the block from an L/G subway entrance. Welcome to Unit 2A at 39 Powers Street.
Leave everything at the door in a private, enclosed foyer before stepping into your great room, an open-plan space with ample opportunity for seating, dining, and cooking—perfect for either entertaining or a quiet night at home. If the mood fits, open the sliding doors and let the outside in to create an even more bright and expansive feeling. You'll also enjoy *newly refinished* dark walnut hardwood floors throughout. Your contemporary kitchen is suited with an extra-wide LG stainless steel refrigerator and five-burner stove (with vented hood), a Bosch dishwasher, and custom reclaimed wooden shelves courtesy of Brooklyn Reclaimed. The primary level also features a powder room, generous storage, and a washer/dryer unit by LG ThinQ.
When it’s time to rest, take the stairs up to the second level of your home and stake your claim of two bedrooms—each featuring 15-foot ceilings, reclaimed wood beams, and their own sizable walk-in closets. Another large balcony sits at the edge of your primary bedroom, while a large spa-like bathroom awaits right outside with its deep-soaking jacuzzi tub, radiant-heated marble floors, and double-sink vanity.
Finally, take it to a bonus level, where you’ll find an incredible—and eminently usable—open loft space with five-foot ceilings. Whether you’re looking for an extra storage area, a playroom, a home office, a cozy movie nook, or even an audio production suite (there is a precedent for it!), this transformative space is a rare and truly versatile feature that can be designed to fit your own unique needs.
If that’s not enough, this wonderful home also includes Fujitsu central AC throughout, a bluetooth-enabled surround-sound audio system, and a 25-year-tax abatement that is still good until 2034—in addition to already low common charges. (A well-run, self-managed condominium has its perks!) But if you’ve read this far? You probably know you need to end your search here and schedule that viewing now.
Listing Courtesy of The Burkhardt Group












Contact us for more information or to arrange viewing.
david.aknin@theagencyre.com
(646) 673-5434