7th Ave & W 25th St - 1BR/1BA

$7,500.00
--

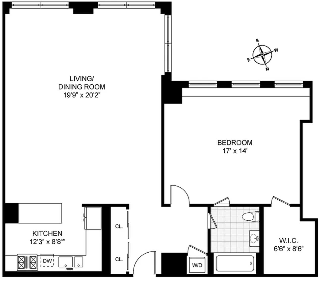
A rarely available LOFT in the highly sought after CHELSEA MERCANTILE. The expansive floor plan (over 1150sf), boasts an enormous Great Room measuring 20" x 20" with 11" ceiling height and 2 exposures (south and west). All rooms are facing onto the beautiful (and quiet) garden and waterfall. The open kitchen with island features granite countertops, cherrywood cabinets and stainless appliances. Oversized Bedroom measures 14" x 17" and has an enormous walk-in closet along with direct access to the limestone clad bath. In-unit Washer/Dryer.

The Chelsea Mercantile amenities include a 24-hour attended lobby, an enormous roof deck with unparalleled views of the city, a fully equipped fitness center, a conference room, a children's playroom, and a garage and Whole Foods are on the lower level. It's convenient to all transportation including multiple subway lines as well as Penn and Moynihan Stations.

Listing Courtesy of Corcoran

A rarely available LOFT in the highly sought after CHELSEA MERCANTILE. The expansive floor plan (over 1150sf), boasts an enormous Great Room measuring 20" x 20" with 11" ceiling height and 2 exposures (south and west). All rooms are facing onto the beautiful (and quiet) garden and waterfall. The open kitchen with island features granite countertops, cherrywood cabinets and stainless appliances. Oversized Bedroom measures 14" x 17" and has an enormous walk-in closet along with direct access to the limestone clad bath. In-unit Washer/Dryer.

The Chelsea Mercantile amenities include a 24-hour attended lobby, an enormous roof deck with unparalleled views of the city, a fully equipped fitness center, a conference room, a children's playroom, and a garage and Whole Foods are on the lower level. It's convenient to all transportation including multiple subway lines as well as Penn and Moynihan Stations.

Listing Courtesy of Corcoran