W 4th St & Washington Square W - 1BR/1BA

$9,995.00
--

“Unique” is a word that gets overused but here, it truly applies. Nearly a century ago, this extraordinary top-floor residence was home to legendary silent film actor John Barrymore, who named it “The Alchemist’s Corner.” The character and creative energy remain unmistakable.

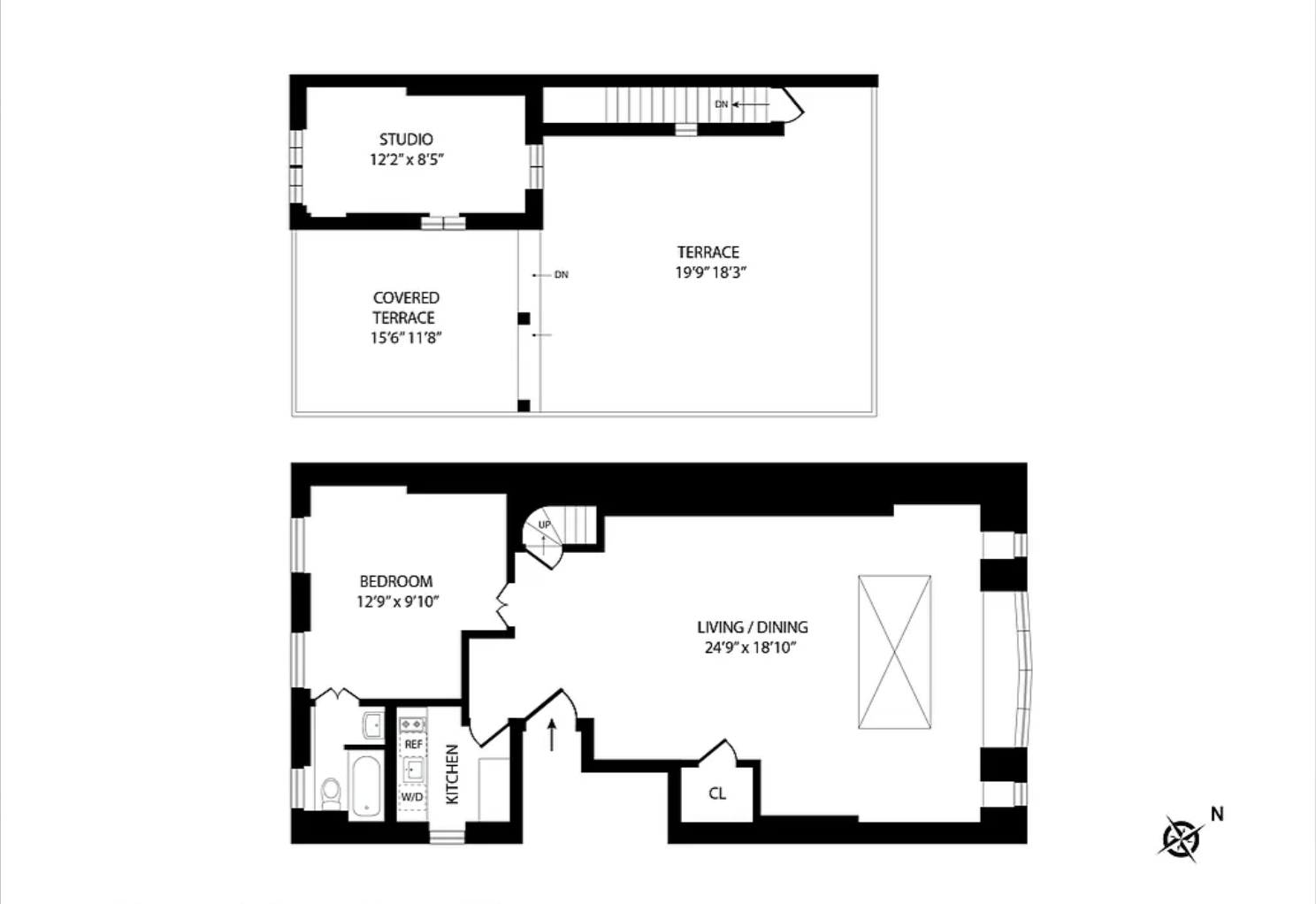
Occupying the entire top floor, the apartment has a true loft-like feel. The expansive living area is crowned by a dramatic vaulted skylight with cast-iron framing, complemented by blue stained-glass windows, arched doorways, and a striking fireplace. A built-in window seat anchors the front of the home, while a private king-sized bedroom with en-suite bath is tucked away in the rear. A washer and dryer are conveniently located within the unit.

A storybook-style door opens to a narrow staircase leading to a spectacular rooftop deck with open views stretching south to One World Trade Center. The deck also features a covered porch and a heated cabana-style cottage.

Built in 1839, this Greek Revival townhouse offers rare history and charm just moments from the West 4th Street subway station yet inside, it feels like a world apart.

If you’re seeking glass and steel, this isn’t it. If you value character, history, and Village views, this is something truly special.

Listing Courtesy of Oxford Property Group

“Unique” is a word that gets overused but here, it truly applies. Nearly a century ago, this extraordinary top-floor residence was home to legendary silent film actor John Barrymore, who named it “The Alchemist’s Corner.” The character and creative energy remain unmistakable.

Occupying the entire top floor, the apartment has a true loft-like feel. The expansive living area is crowned by a dramatic vaulted skylight with cast-iron framing, complemented by blue stained-glass windows, arched doorways, and a striking fireplace. A built-in window seat anchors the front of the home, while a private king-sized bedroom with en-suite bath is tucked away in the rear. A washer and dryer are conveniently located within the unit.

A storybook-style door opens to a narrow staircase leading to a spectacular rooftop deck with open views stretching south to One World Trade Center. The deck also features a covered porch and a heated cabana-style cottage.

Built in 1839, this Greek Revival townhouse offers rare history and charm just moments from the West 4th Street subway station yet inside, it feels like a world apart.

If you’re seeking glass and steel, this isn’t it. If you value character, history, and Village views, this is something truly special.

Listing Courtesy of Oxford Property Group